
Aquí presentamos un plano de casa de campo junto con la imagen de la fachada de la vivienda, un corte de la fachada y los planos de la casa.
Bonito diseño de casa de campo, en la siguiente imagen se puede ver la parte de atras de la vivienda donde se observa el revestimiento muy bonito de piedra.
Se puede observar el corte de fachada de la casa desde cuatro puntos de vista distintos. En este caso se puede ver en detalle todos los lados de la casa donde se puede observar bien el diseño de la fachada con sus cortes y estilos.

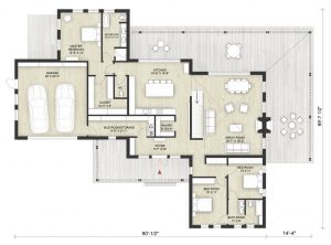
Aquí presentamos el plano de casa, el mismo tiene dos pisos, se caracteriza por doble cochera, tres habitaciones, 2,5 baños. También se puede observar el plano del segundo piso de esta casa de campo.



