
En esta entrega vamos a ver de manera superficial el diseño de la fachada, las texturas y colores aplicados, se podrá apreciar bien el corte de la fachada en 3d en sus distintos niveles.




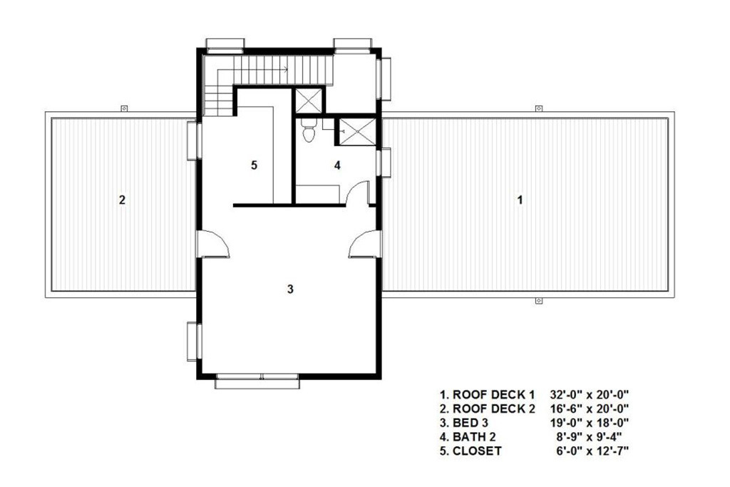
En este desarrollo se presentan los 3 niveles desarrollados en 3d, cabe aclarar que en el techo del piso superior se instalaron paneles solares, la energía renovable es algo muy importante a tener en cuenta al momento de un desarrollo inmobiliario, y en este caso ya se tiene en cuenta.


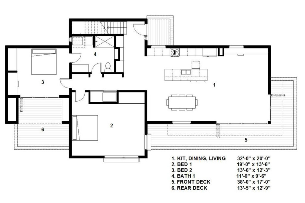
- desayunador cocina living
- habitación grande
- habitación pequeña
- baño 1
- ingreso con piso deck
- patio deck

